有限会社ハーペックは空調 給排水の設備設計・工事を請負います。

有限会社ハーペックは空調 給排水 電気の設備設計・工事を請負います。

省エネ・省力化

省エネ・省力化

HOME > ニーズ別施工案 > 省エネ・省力化

地球環境を考えた省エネルギー設計

ハーペックの省エネルギー設計

  • ハーペックの省エネルギー設計

    環境問題の進展、省資源・省エネルギーの必要性の高まりをうけて、
    エネルギー有効利用の技術はますます重要となってきました。

    そうした時代に応えて当社が取り組んでいるのが
    排熱回収設備設計です。

排出から循環へ ―排熱回収設備の有用性について―

  • ハーペックの省エネルギー設計

    多くの生産工場からは
    ・ボイラーの煙突からの排煙
    ・生蒸気の大気放出
    ・漏洩
    ・蒸気ドレンの大気放出 等

    多くの熱エネルギーが捨てられています。
    それらの熱エネルギーを回収し有効利用することによって、コストの削減を図ることが出来ます。
    また、蒸気設備を効率よく維持管理することによって、無駄な蒸気を減らし生産コストを低減することが出来ます。

省エネとコスト削減の両立

ハーペックでは、企画・提案、設計、施工、メンテナンス(維持管理)までをトータルにサポートし、
お客様のエネルギー需要に最適な省エネルギーシステムを実現します。

地球環境保護にも大きく貢献できる画期的な設備になります。是非ご検討ください。

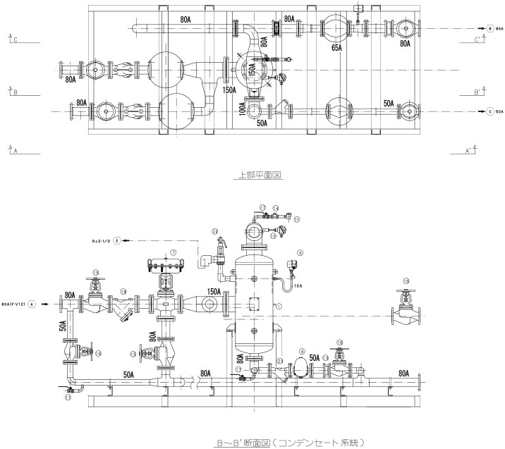
省エネ設備設置工事

  • フラッシュ蒸気回収装置

    ・発電機排熱回収装置
    ・蒸気ドレン回収装置

フラッシュタンクモジュール