有限会社ハーペックは空調 給排水の設備設計・工事を請負います。

有限会社ハーペックは空調 給排水 電気の設備設計・工事を請負います。

消防設備

機械装置

HOME > 業務案内 > 機械装置

工場全体を考えた省人化・省力化の実現

  • FA(ファクトリーオートメーション)のご提案

    FA(ファクトリーオートメーション)のご提案

    ファクトリーオートメーションとは、従来人間がおこなっていた作業を、機械を導入することによって無人化することです。

    既存の作業ラインを無人化する場合と、ラインを新設する際に無人化する場合があり、ハーペックでは貴社にあった適切な提案をさせていただきます。

    まずは、部分的範囲の自動化から始めてみませんか。

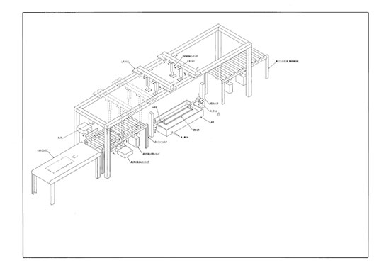
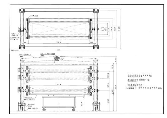
設計例

・反転機・・・鋼板を使用に合わせて反転する為の機械

反転機 設計図

・自動化ライン

自動化ライン 設計図